Sensanum - Gesundheit im Zentrum
Medizinisches Zentrum in Pirmasens, 2011-2012

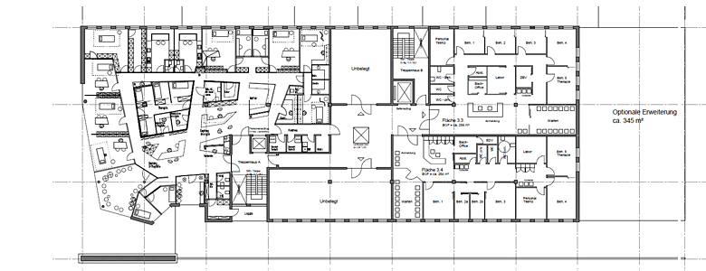
Errichtung eines Medizinischen Zentrums am Dr. Robert-Schelp-Platz in Pirmasens - ehemalige Messehalle 1A
Leistungen:
- Bauliches Konzept
- Objektplanung LPH 1-4 und teilweise 5
- Entwicklung CI (Name "Sensanum", Logo, Layout)
- Design Homepage "www.sensanum.de"
- Mieterakquise
Bereits Anfang der 200er-Jahre gab es Bestrebungen einiger niedergelassener Fachärzte zur Einrichtung eines Medizinischen Kompetenuzentrums. Erste Vorkonzepte und Planungen wurden durch a+p | architekten ab 2007 an verschiedenen Standorten wie z.B. Im Stadtzentrum von Pirmasens (Exerzierplatz) oder im Konversionsgebiet Husterhöhe entwickelt.
Nachdem eine Bauvoranfrage im Konversionsgebit negativ beschieden wurde konnte durch die Investorengemeinschaft ein Teil des Messeareals mit einer bestehenden Messehalle erworben werden. An diesem Standort wurde ab 2010 geplant. Nachdem einige der beteiligten Ärzte vom Projekt Abstand nahmen wurde die Projektierung ab 2012 auf neue Beine gestellt und durch a+p | architekten das "Sensanum"-Konzept entwickelt. Die Projekthomepage wurde initiiert und eine mehrseitige farbige Broschüre zur Mieterakquise angefertigt. Das Projekt wurde im Stadtrat und Hauptausschuss der Stadt Pirmasens vorgestellt.
Ende 2012 begann der Teilrückbau der bestehenden Messehalle.
Parallel wurde die Genehmigungsplanung erstellt und Anfang 2013 der Bauantrag eingereicht. Es waren zu diesem Zeitpunkt ca. 65% der Fläche vermietet.
Auf Grund der jedoch nicht darstellbaren Finanzierung (Eigenanteil) musste das Vorhaben gestoppt werden.
Das Vorhaben eines Medizinischen Zentrums wurde später schließlich mit einer neuen Investorengruppe am geplanten Standort in anderer Form realisiert.